TỔNG QUAN PHÂN KHU TINH HOA VINHOMES GLOBAL GATE CỔ LOA

Diện tích phân khu: Đang cập nhật

Mô hình phát triển: Phân khu mở

Quy mô phát triển: 1.752 căn nhà ở thấp tầng

  • Biệt thự đơn lập: 60 căn
  • Biệt thự song lập: 124 căn
  • Biệt thự tam lập: 6 căn
  • Biệt thự tứ lập: 80 căn
  • Liền kề: 1.482 căn

Thời gian bàn giao: Năm 2025

Hình thức sở hữu: Sổ đỏ lâu dài

VỊ TRÍ PHÂN KHU TINH HOA

Phân khu Tinh Hoa tọa lạc ở góc phía Tây của khu đô thị Vinhomes Global Gate, tiếp giáp với đường Trường Sa (Quốc lộ 5A) rộng 72m – trục giao thông chính kết nối khu vực phía Đông, phía Bắc Hà Nội với các tỉnh Thái Nguyên, Vĩnh Phúc, Hưng Yên, Hải Dương, Hải Phòng; cùng với đường thành phố TP5 chạy ngang khu đô thị Vinhomes Cổ Loa, tạo nên sự thuận tiện tối đa trong kết nối giao thông nội – ngoại khu.

Điểm nổi bật nhất của phân khu Tinh Hoa là vị trí độc tôn, bao quanh bởi hồ Thiên Nga rộng 32 ha và công viên Xứ Sở Thần Tiên 5.6 ha – hai kỳ quan hàng đầu của Vinhomes Global Gate. Ngoài ra, phân khu còn giáp với trung tâm hội chợ triển lãm quốc gia rộng 90 ha, cùng chuỗi khách sạn 5 sao, văn phòng hạng A và hệ thống trường học Vinschool, Brighton College, mang lại lợi thế lớn cho cả kinh doanh và cuộc sống an cư đẳng cấp.

MẶT BẰNG PHÂN KHU TINH HOA

Upload Image...

CHẤT SỐNG MANHATTAN TRONG LÒNG THÀNH PHỐ THƯƠNG MẠI QUỐC TẾ

Phân khu Tinh Hoa là phân khu thấp tầng có quy mô lớn nhất tại Vinhomes Global Gate. Nơi đây quy tụ những dãy biệt thự liền kề được thiết kế mô phỏng theo phong cách các khu phố sầm uất ở quận Manhattan, New York – Mỹ. Đặc trưng bởi các khối nhà cô đọng với mặt ngoài ốp gạch cách điệu, cửa sổ vuông rộng và mái bằng đặc trưng, kiến trúc đương đại này từng được Vingroup ứng dụng thành công tại The Manhattan Vinhomes Imperia Hải Phòng và được giới thượng lưu ưa chuộng nhờ vẻ đẹp lịch lãm, thời thượng, tái hiện đẳng cấp sống xa hoa của giới quý tộc “Xứ sở Cờ Hoa”.

Bên cạnh kiến trúc sang trọng, phân khu Tinh Hoa còn nổi bật với không gian cảnh quan đẳng cấp nhất Vinhomes Cổ Loa. Trong phân khu có bộ ba công viên Swan Park, Rose Park, Pearl Park rộng lớn, mỗi công viên đều sở hữu bể bơi ngoài trời phong cách resort, các sân thể thao, khu vui chơi trẻ em và đường dạo bộ ngập tràn cây xanh, hoa lá. Kết hợp với công viên Xứ Sở Thần Tiên rộng 5.6 ha và hồ Thiên Nga 32 ha nằm đối diện, phân khu Tinh Hoa tái hiện trọn vẹn phong cách sống đậm chất Mỹ: thời thượng, hiện đại và hòa quyện tuyệt vời cùng thiên nhiên.

LOẠI HÌNH PHÁT TRIỂN

BIỆT THỰ ĐƠN LẬP

Biệt thự đơn lập Tinh Hoa gồm 60 căn, với diện tích đất từ 178,3 đến 313,8 m² (phần lớn khoảng 212,5 m²), mật độ xây dựng khoảng 50%, cao 4 tầng. Các căn biệt thự này chủ yếu tọa lạc dọc theo trục đường thành phố TP5, đối diện trực tiếp với công viên Xứ Sở Thần Tiên và hồ Thiên Nga rộng 32 ha. Đây là dòng sản phẩm đẳng cấp nhất tại phân khu Tinh Hoa nói riêng và toàn bộ Vinhomes Global Gate Cổ Loa nói chung, phù hợp cả để an cư lẫn đầu tư kinh doanh. Hiện giá bán biệt thự đơn lập Tinh Hoa dao động trong khoảng từ 100 đến 200 tỷ đồng.

BIỆT THỰ SONG LẬP

Biệt thự song lập Tinh Hoa gồm 124 căn, với diện tích đất chủ yếu từ 127,5 đến 147,6 m², mật độ xây dựng từ 55% đến 58%, cao 4 tầng. Các căn biệt thự này tập trung chủ yếu dọc hai bên các công viên Swan Park, Rose Park và Pearl Park. Đây là dòng sản phẩm đẳng cấp hàng đầu tại Vinhomes Cổ Loa, có mức giá hợp lý hơn so với biệt thự đơn lập nhưng vẫn mang lại chất sống “resort” sang trọng, rất được lòng giới thượng lưu. Hiện giá bán biệt thự song lập Tinh Hoa dao động từ 50 đến 60 tỷ đồng.

BIỆT THỰ TAM LẬP & TỨ LẬP

Biệt thự tam lập và tứ lập Tinh Anh gồm 86 căn, với diện tích đất chủ yếu là 127,5 m², mật độ xây dựng khoảng 65% và cao 4 tầng. Các căn biệt thự này tọa lạc dọc theo ba trục đường Hoàng Gia 4, 5 và 6. Về cơ bản, biệt thự tam lập và tứ lập được tạo thành từ việc ghép 4 căn biệt thự liền kề, tuy nhiên tam lập có đặc điểm nằm ở vị trí góc tam giác nên thiếu đi một căn. Điểm nổi bật của hai dòng sản phẩm này là diện tích và mức giá hợp lý, đồng thời vẫn đáp ứng đầy đủ các tiêu chuẩn của một biệt thự cao cấp. Hiện nay, giá bán biệt thự tam lập và tứ lập dao động trong khoảng 40 – 42 tỷ đồng.

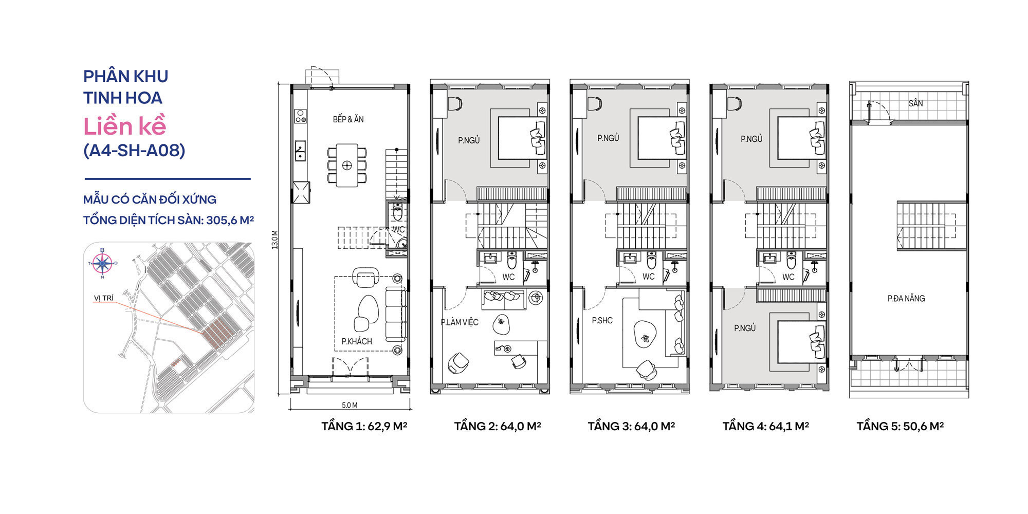
LIỀN KỀ

Liền kề (nhà phố) Tinh Hoa gồm 1.482 căn, với diện tích đất chủ yếu từ 62,5 – 90 m² (đối với lô góc từ 87,5 – 201,4 m²), mật độ xây dựng trung bình khoảng 84% và cao 5 tầng. Các căn liền kề phân bổ dày đặc trên hầu hết các trục đường nội bộ của phân khu Tinh Hoa. Đây là dòng sản phẩm chủ lực của phân khu, chiếm đến 84% tổng số căn hộ, phù hợp với những khách hàng có tiềm lực tài chính tốt, muốn mua để an cư, kinh doanh hoặc đầu tư tích lũy tài sản. Hiện giá bán liền kề Tinh Hoa dao động từ 17 – 36 tỷ đồng.

MẶT BẰNG THIẾT KẾ BIỆT THỰ LIỀN KỀ TINH HOA

Giá bán PHÂN KHU TINH HOA

Loại hình Diện tích đất Mật độ xây dựng Chiều cao Giá bán
Liền kề thường 62.5 – 90 m2 84% 5 tầng 17 – 36 tỷ
Liền kề góc 87.5 – 201.4 m2 70 – 80% 5 tầng 28 – 60 tỷ
Biệt thự tứ lập 127.5 m2 65% 4 tầng 40 – 42 tỷ
Biệt thự tam lập 127.5 m2 65% 4 tầng 40 – 42 tỷ
Biệt thự song lập 127 – 147.6 m2 55 – 58% 4 tầng 50 – 60 tỷ
Biệt thự đơn lập 178.3 – 313.8 m2 50% 4 tầng 100 – 200 tỷ

 

Vinhomes Land

Vinhomes Land – Chung tay xây dựng cộng đồng Vinhomes

Được góp phần trong công cuộc kiến tạo nên những khu đô thị Vinhomes văn minh, hiện đại, năng động, giúp những công dân tinh hoa có thể an tâm làm việc & tận hưởng cuộc sống là điều mà Vinhomes Land luôn tự hào. Hãy để chúng tôi trở thành cầu nối giúp bạn đến gần hơn với cuộc sống thượng lưu tại các quần thể đô thị Vinhomes.