TỔNG QUAN SHOPHOUSE VINHOMES RIVERSIDE THE HARMONY

Quy mô phát triển: 57 căn liền kề

  • Shophouse Phong Lan: 19 căn
  • Shophouse Hướng Dương: 10 căn
  • Shophouse Nguyệt Quế: 28 căn

Phong cách xây dựng: Pháp, Đông Dương, Hy Lạp

Diện tích liền kề: 165 – 218 m2

Mật độ xây dựng: 45 – 55%

Chiều cao: 3.5 tầng

Hình thức sở hữu: Sổ đỏ lâu dài

Tổng mặt bằng Vinhomes riverside - the harmony GĐ II
Tổng mặt bằng Vinhomes riverside - the harmony GĐ II

3 LOẠI HÌNH SHOPHOUSE PHÁT TRIỂN

SHOPHOUSE PHONG LAN

Shophouse Phong Lan tọa lạc trên đường Nguyễn Lam, đối diện khu căn hộ Sunrise Building. Với diện tích đất từ 216 – 218 m², mật độ xây dựng khoảng 45% và cao 3,5 tầng, shophouse được thiết kế theo phong cách Pháp đặc trưng, nổi bật với mái Mansard cùng các ô cửa sổ vòm thanh thoát. Sản phẩm thu hút nhờ khả năng kinh doanh vượt trội khi nằm trên tuyến đường Nguyễn Lam – một trong những trục giao thông chính của khu Sài Đồng. Trong số ba khu shophouse tại The Harmony, Phong Lan được đánh giá là khu có giá trị khai thác kinh doanh tốt nhất.

 

SHOPHOUSE HƯỚNG DƯƠNG

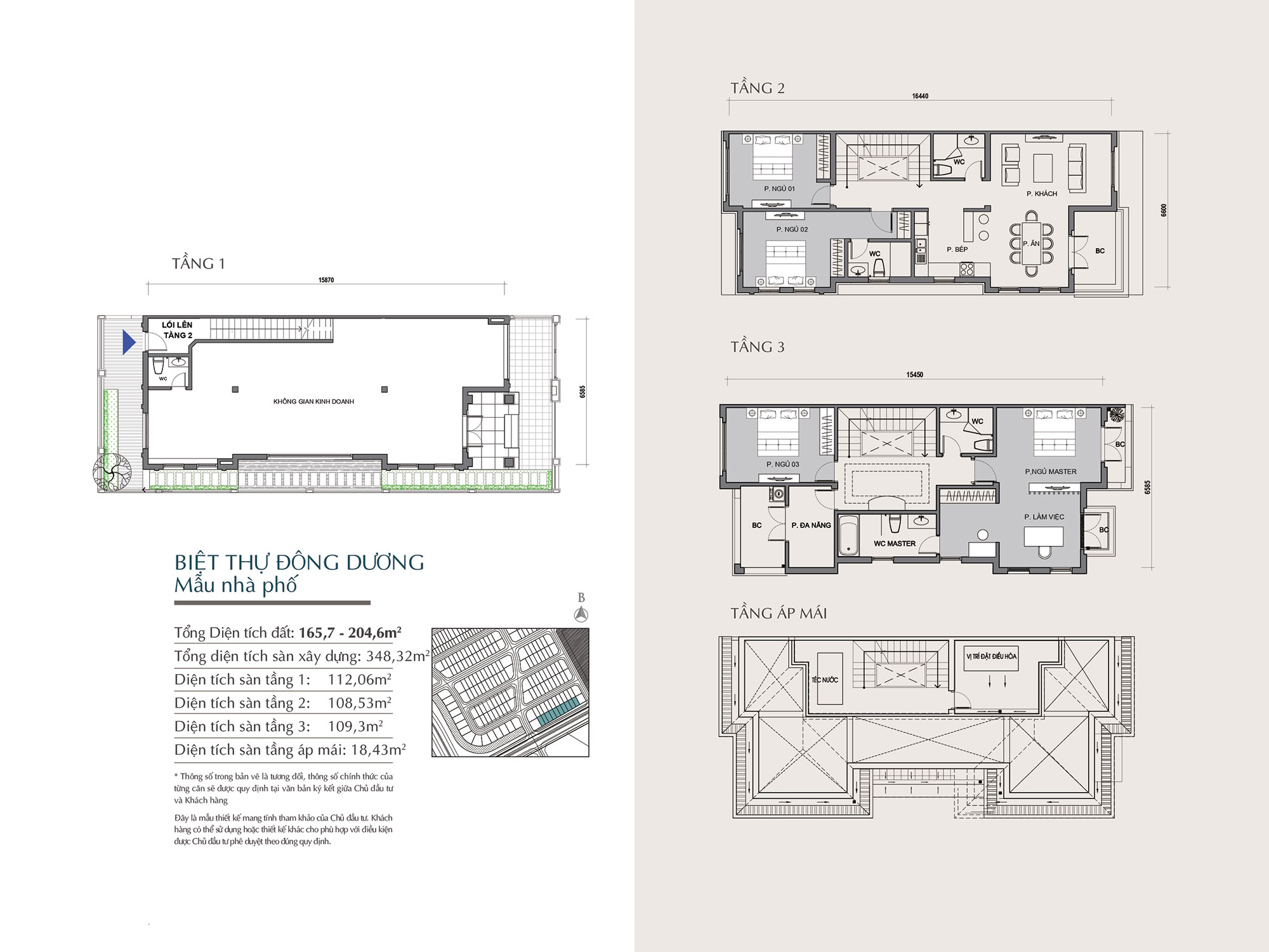
Shophouse Hướng Dương tọa lạc trên đường Huỳnh Văn Nghệ, đối diện khu dân cư Sài Đồng. Với diện tích đất từ 165 – 204 m², mật độ xây dựng khoảng 45 – 55%, cao 3,5 tầng, shophouse được thiết kế theo phong cách Đông Dương độc đáo, kết hợp giữa khối nhà cô đọng kiểu Pháp và mái ngói dốc cùng các họa tiết trang trí mang đậm nét Việt Nam. Ưu điểm của shophouse Hướng Dương là diện tích và giá thành hợp lý, đồng thời mang đến khả năng kinh doanh hiệu quả nhờ thiết kế thông minh và vị trí nằm trên tuyến giao thông huyết mạch Huỳnh Văn Nghệ tại Sài Đồng.

SHOPHOUSE NGUYỆT QUẾ

Shophouse Nguyệt Quế nằm tại vòng xuyến Chu Huy Mân, ngay bên cạnh khu căn hộ Hope Residences. Diện tích đất đang được cập nhật, mật độ xây dựng khoảng 50%, cao 3,5 tầng. Thiết kế theo phong cách Hy Lạp tân cổ điển, nổi bật với mái đầu hồi đặc trưng, kết hợp hàng cột bên ngoài và các ô cửa vuông lớn. Ưu điểm lớn nhất của shophouse Nguyệt Quế là vị trí cửa ngõ khu đô thị The Harmony, gần kề trường học Vinschool và khu căn hộ Hope Residences, giúp chủ sở hữu dễ dàng khai thác nguồn khách hàng cư dân và khách vãng lai dồi dào.

MẶT BẰNG THIẾT KẾ SHOPHOUSE VINHOMES RIVERSIDE THE HARMONY

TIỀM NĂNG KINH DOANH VƯỢT TRỘI, LỢI NHUẬN LÊN TỚI 8 – 10%/NĂM

Sức hút lớn nhất của shophouse The Harmony đến từ khả năng khai thác kinh doanh vượt trội nhờ thiết kế ưu việt cả không gian trong nhà (“indoor”) và sân vườn, vỉa hè bên ngoài (“outdoor”). Chủ sở hữu còn tận dụng được lượng cư dân đông đảo, cao cấp tại hai khu đô thị Vinhomes Riverside và Vinhomes Riverside The Harmony, những khách hàng sẵn sàng chi trả cao cho các sản phẩm, dịch vụ chất lượng. Tại dự án Vinhomes Gardenia Mỹ Đình cùng chủ đầu tư Vingroup, shophouse đã ghi nhận thành công với lợi nhuận kinh doanh, cho thuê hoặc bán lại đạt từ 8 – 10% mỗi năm.

Bên cạnh đó, quận Long Biên đang phát triển mạnh mẽ, đặc biệt các phường Việt Hưng, Phúc Đồng, Sài Đồng, Giang Biên trở thành trung tâm sôi động với hai khu đô thị sinh thái đẳng cấp: Vinhomes Riverside và Vinhomes Riverside The Harmony. Năm 2016 chứng kiến hàng loạt khu căn hộ mới như Eco City Việt Hưng, Valencia Garden, No – 08 Giang Biên và chuỗi dự án Ruby City của Công ty Cổ phần Phát Triển Nhà Thăng Long Việt Nam ra đời. Trong tương lai, cộng đồng cư dân tại các dự án này sẽ tạo nên nguồn khách hàng tiềm năng, mang lại lợi nhuận kinh doanh lớn cho chủ sở hữu shophouse The Harmony.

GIÁ BÁN SHOPHOUSE VINHOMES RIVERSIDE THE HARMONY

Diện tích đất Mật độ xây dựng Chiều cao Giá bán
216 – 218 m2 45% 3.5 tầng Hết hàng Shophouse Phong Lan
165 – 204 m2 50 – 55% 3.5 tầng Hết hàng Shophouse Hướng Dương
Đang cập nhật 50% 3.5 tầng Hết hàng Shophouse Nguyệt Quế
Vinhomes Land

Vinhomes Land – Chung tay xây dựng cộng đồng Vinhomes

Được góp phần trong công cuộc kiến tạo nên những khu đô thị Vinhomes văn minh, hiện đại, năng động, giúp những công dân tinh hoa có thể an tâm làm việc & tận hưởng cuộc sống là điều mà Vinhomes Land luôn tự hào. Hãy để chúng tôi trở thành cầu nối giúp bạn đến gần hơn với cuộc sống thượng lưu tại các quần thể đô thị Vinhomes.