TỔNG QUAN NHÀ VƯỜN VINHOMES RIVERSIDE THE HARMONY

Quy mô phát triển: 134 căn liền kề

  • Liền kề Phong Lan: 37 căn
  • Liền kề Nguyệt Quế: 97 căn

Phong cách xây dựng: Pháp, Hy Lạp

Diện tích liền kề: 151 – 168 m2

Mật độ xây dựng: 65 – 70%

Chiều cao: 3.5 tầng

Hình thức sở hữu: Sổ đỏ lâu dài

Tổng mặt bằng Vinhomes riverside - the harmony GĐ II

2 LOẠI HÌNH LIỀN KỀ PHÁT TRIỂN

NHÀ VƯỜN PHONG LAN

Nhà vườn Phong Lan tọa lạc tại các tuyến đường Phong Lan 1, Phong Lan 2 và Phong Lan 4, thuộc tiểu khu Phong Lan. Mỗi căn có diện tích đất 168 m², mật độ xây dựng khoảng 65%, cao 3,5 tầng và mang đậm phong cách kiến trúc Pháp. Thiết kế nổi bật với hình khối vững chãi, kết hợp tinh tế cùng các ô cửa vòm thanh thoát và mái Mansard đặc trưng. Hầu hết các căn đều sở hữu tầm nhìn hướng thẳng ra khu vườn châu Âu hoặc kênh sinh thái, đi kèm sân vườn rộng rãi trước và sau nhà – mang đến lựa chọn lý tưởng cho những ai yêu thích không gian sống xanh, thơ mộng và gần gũi với thiên nhiên.

 

NHÀ VƯỜN NGUYỆT QUẾ

Nhà vườn Nguyệt Quế thuộc giai đoạn 1 của tiểu khu Nguyệt Quế, có diện tích từ 151 – 168 m², mật độ xây dựng 65 – 70%, cao 3,5 tầng. Các căn được thiết kế theo kiến trúc Hy Lạp cổ điển, nổi bật với mái đầu hồi đặc trưng và hàng cột bên ngoài được trang trí họa tiết hình quả trám tinh tế. Chiếm tới 70% tổng số nhà vườn tại The Harmony, trong đó một nửa hướng ra công viên nội khu rộng lớn, nhà vườn Nguyệt Quế là lựa chọn lý tưởng cho những ai tìm kiếm cuộc sống xanh, tiện nghi và đẳng cấp.

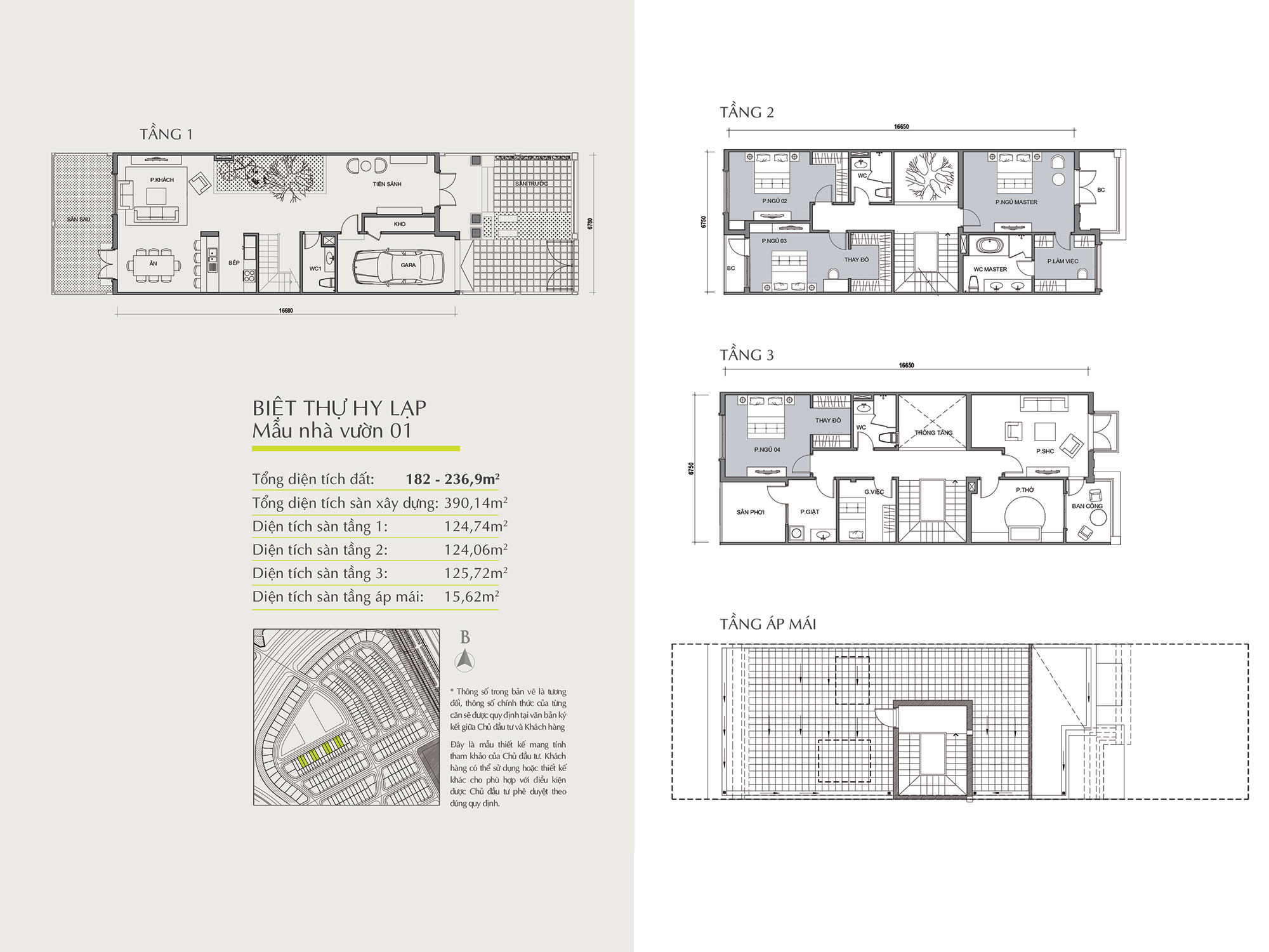
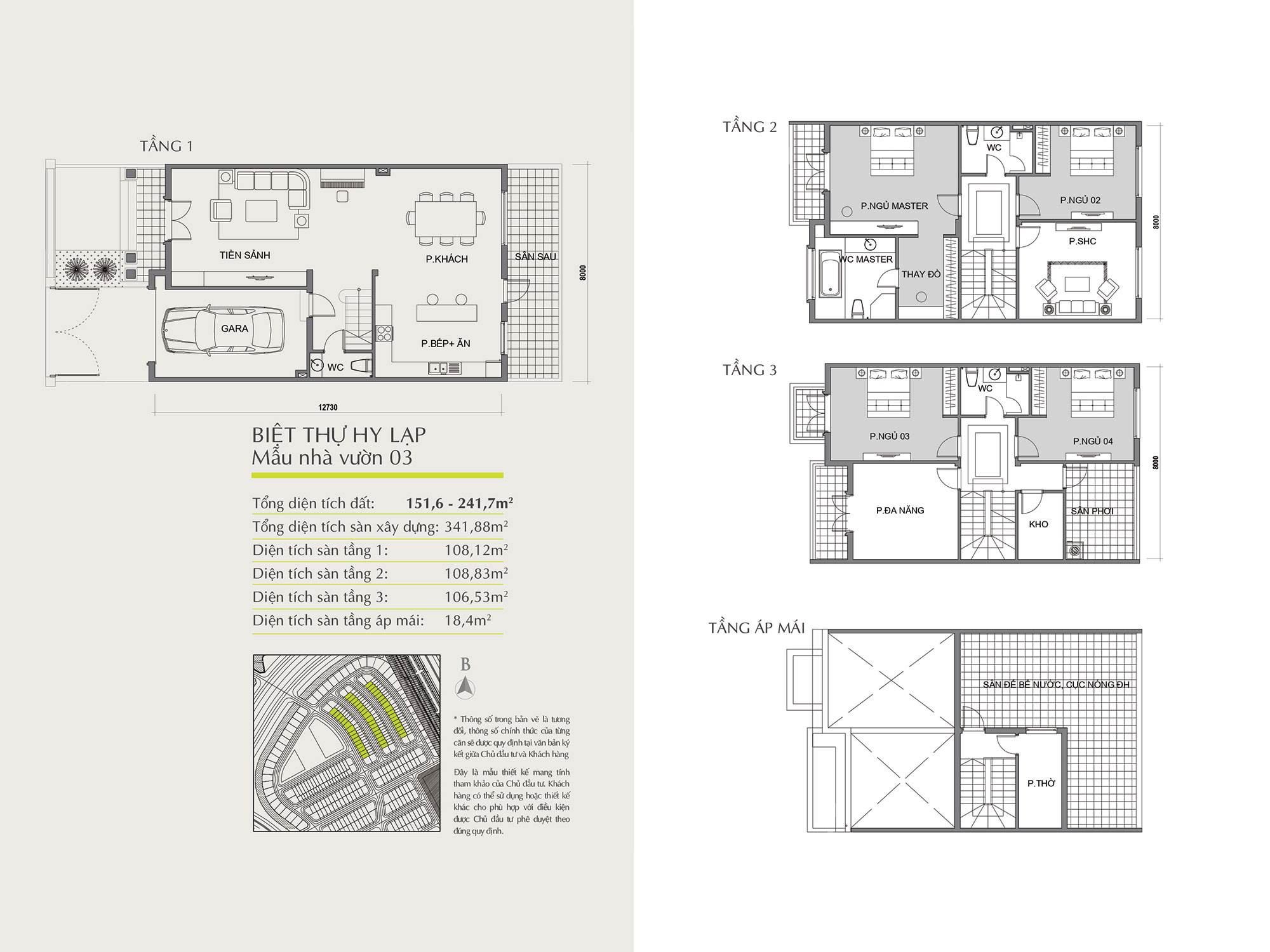
MẶT BẰNG THIẾT KẾ NHÀ VƯỜN VINHOMES RIVERSIDE THE HARMONY

“NHÀ VƯỜN” – DÒNG SẢN PHẨM CHỈ CÓ TẠI VINHOMES RIVERSIDE

Vinhomes Riverside không chỉ là khu đô thị sở hữu không gian sống lý tưởng bậc nhất trong hệ thống Vinhomes tại Hà Nội, mà còn nổi bật với kiến trúc đa dạng và phong cách phát triển độc đáo. Dự án là sự giao thoa tinh tế của bốn nền văn hóa kiến trúc – Pháp, Đông Dương, Hy Lạp và Italia – đồng thời quy tụ đầy đủ sáu loại hình nhà ở: biệt thự đơn lập, song lập, tứ lập, nhà liền kề, nhà vườn và shophouse. Trong đó, nhà vườn là một trong hai dòng sản phẩm đặc sắc nhất tại Vinhomes Riverside Long Biên, được yêu thích nhờ giá bán hợp lý nhưng vẫn mang đến không gian sống gần như tương đương với biệt thự.

Nhà vườn Vinhomes The Harmony về cơ bản có thiết kế tương tự nhà liền kề với kết cấu nhiều tầng và các căn nằm liền kề nhau. Tuy nhiên, diện tích đất của nhà vườn lớn hơn đáng kể, đi kèm là sân vườn rộng phía trước, phía sau và cả trên tầng thượng, tạo nên không gian sống chan hòa thiên nhiên. Đặc biệt, nhà vườn còn sở hữu garage riêng trong nhà – một tiện ích mà liền kề The Harmony không có.

So với biệt thự The Harmony, nhà vườn có diện tích đất nhỏ hơn nhưng diện tích sàn sử dụng gần như tương đương. Nhờ đó, công năng sử dụng không hề thua kém biệt thự, trong khi giá bán lại dễ tiếp cận hơn nhiều – chỉ từ 11 tỷ đồng. Đây là lựa chọn hoàn hảo dành cho những khách hàng luôn mơ ước được sống tại “xứ sở thanh bình” Vinhomes Riverside nhưng có ngân sách vừa phải, chưa đủ để sở hữu biệt thự.

GIÁ BÁN NHÀ VƯỜN VINHOMES RIVERSIDE THE HARMONY

Diện tích đất Mật độ xây dựng Chiều cao Giá bán
168 m2 65% 3.5 tầng Hết hàng Nhà vườn Phong Lan
151 – 168 m2 65 – 70% 3.5 tầng Hết hàng Nhà vườn Nguyệt Quế
Vinhomes Land

Vinhomes Land – Chung tay xây dựng cộng đồng Vinhomes

Được góp phần trong công cuộc kiến tạo nên những khu đô thị Vinhomes văn minh, hiện đại, năng động, giúp những công dân tinh hoa có thể an tâm làm việc & tận hưởng cuộc sống là điều mà Vinhomes Land luôn tự hào. Hãy để chúng tôi trở thành cầu nối giúp bạn đến gần hơn với cuộc sống thượng lưu tại các quần thể đô thị Vinhomes.